Wien
Restaurering och ombyggnad
-
År2015
-
PlatsWien, Österrike
-
BeställareStatens fastighetsverk
-
Ansvarig arkitektMartin Stintzing
-
Handläggande arkitektMartin Stintzing och Daniel Berg
-
Medverkande arkitektSven Nyström och Jacob Hidematk
-
FotoÅke E:son Lindman och Daniel Berg (representationssalar)
-
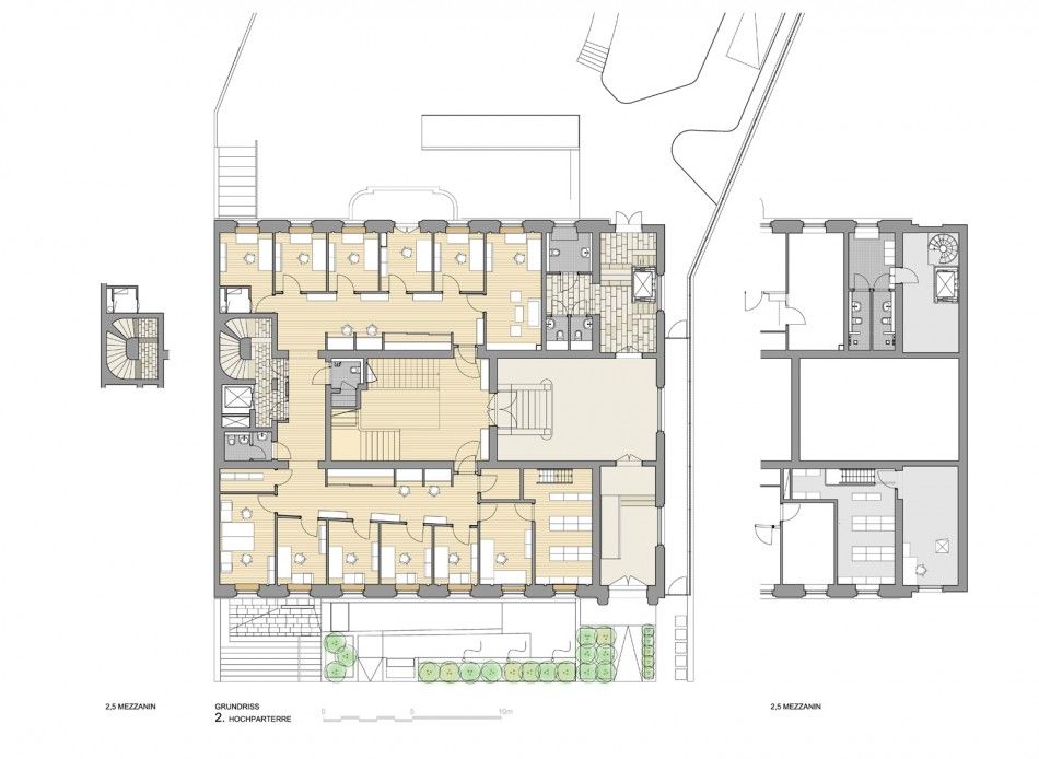
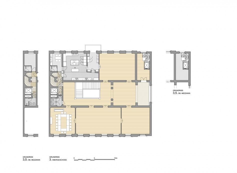
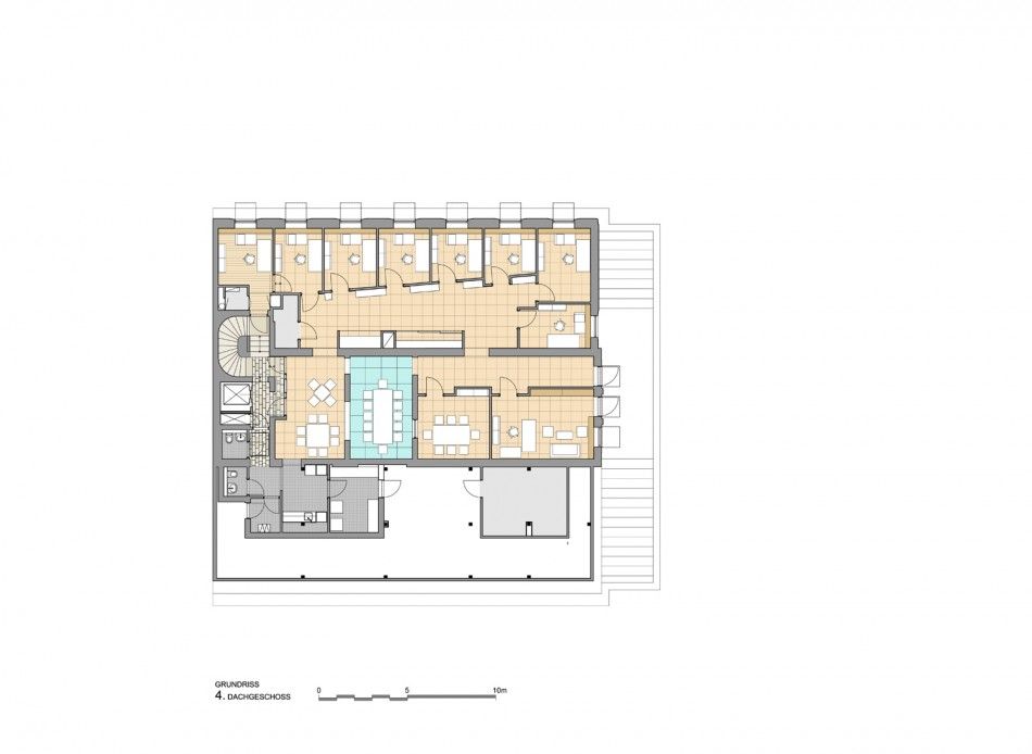
Beskrivning"Den tidigare svenska representationsbyggnaden, belägen på Liechtensteinstrasse i centrala Wien, har efter en omfattande renovering och ombyggnad förvandlats till ett funktionellt Schwedenhaus. Invigning skedde i oktober och Statens fastighetsverk (SFV) välkomnar den svenska ambassaden och OSSE - organisationen för säkerhet och samarbete i Europa - till ljusa och moderna kontorslokaler i den historiskt intressanta fastigheten."





















