Skip to main content
Projekt
Ambassader
Flerbostadshus
Interiör
Kulturarv
Offentligt
Övrigt
Pressklipp
Privatbostäder
Tävlingar
Utbildning
Kontoret
Kontakt
Projekt
Kontoret
Kontakt
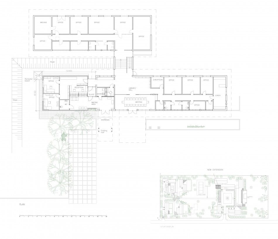
Brasilia
Renovering och tillbyggnad
År
2012
Plats
Brasilien
Beställare
Statens fastighetsverk
Ansvarig arkitekt
Jacob Hidemark
Handläggande arkitekt
Malin Holmberg