Katarinabacken 1
Restaurering och ombyggnad
-
År2016
-
PlatsSödermalm, Stockholm
-
BeställareAB Stadsholmen
-
Ansvarig arkitektJacob Hidemark
-
Handläggande arkitektIdha Övelius
-
Medverkande arkitektMalin Holmberg
-
FotoMattias Ek SSM (bild före) och Åke E:son (bilder efter)
-
Beskrivning
BAKGRUND
Projekteringen inför ombyggnaden började 2012 med en förstudie för att få en överblick om byggnadens skick och behov. Stammar och installationer var uttjänta och omoderna. Fasadernas puts visade sig vara i dåligt skick och behövde putsas om i sin helhet. Flertalet av fönstren, monterade på 1980-talet med instickskarmar hade rötskador och behövdes bytas.
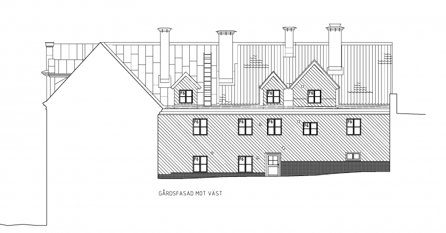
I källaren som var byggd under gården fanns fuktproblem och dess tak med konstruktion av murade/gjutna valv mellan järnbalkar var försvagat. Generellt sett var ytskikten i huset slitna. Då den senaste genomgripande renoveringen hade utförts på 1940-talet var badrummens tätskikt av äldre typ, köken var bitvis slitna och omoderna. En av förutsättningarna inför ombyggnaden var att de mindre lägenheterna mot Katarina Kyrkobacke skulle utrustas med dusch. För att lösa detta lades ett stort arbete ned på att jämföra ritningar och dokument från olika perioder med syfte att hitta lösningar som ej krävde nya håltagningar eller rivning av kulturhistoriskt värdefulla byggnadsdelar.FÖNSTERRENOVERINGEN Under 1980-talet byttes fönstren i hela byggnaden ut mot nya med instickskarm och kopplade bågar. Trots att de var så pass nya hade de redan rötskador. När instickskarmarna lyftes ur kom de ursprungliga karmarna från 1700-talet fram. Dessa var skadade genom att mittpost och tvärpost hade sågats bort. På våning en trappa och på gårdens bottenvåning renoverades 1700-talskarmarna och kompletterades med ny mitt- och tvärpost. För att göra det lättare för hyresgästerna att vädra så försågs ett fönster per rum med lättruta, det vill säga en öppningsbar glasruta i fönstrets ena båge. På de övre våningsplanen var originalkarmarna antingen borta eller i för trasigt skick för att räddas. För dessa fönster gjordes nya fönster med kopplade, utåtgående bågar. Dessa monterades inte som instickskarm utan direkt i murnischen. Genom att återskapa de ursprungliga fönsterstorlekarna, både för fönster med separata bågar och kopplade bågar, ökade fönstrens yta med ca 20% jämfört med de tidigare som var med instickskarm. Fönstren målades sedan med linoljefärg.
FASADRENOVERINGEN Den föregående fasadrenoveringen utfördes 1959. Fasaderna mot Klevgränd och Katarina kyrkobacke putsades då med en röd spritputs. Putsbruket var ett kalkcementbruk och genomfärgat med järnoxid (typ Falu rödfärg). Pigmentmängden var mycket stor för att erhålla den djupröda kulören. Detta bidrog till att bruket blev svagt. Efter drygt femtio år var fasadputsen uttjänt. Delar hade eroderat bort, större ytor var förgipsade och det röda pigmentet hade runnit ned på fönsteromfattningar och sockel. Putsbruket på sockelvåningen mot Klevgränd är var med kalkputs och har klarat sig mycket bättre än fasadputsen. Inför den nu genomförda renoveringen togs beslutet att befintlig puts skulle knackas ned och att fasaderna skulle putsas om med en äkta kalkputs och därefter avfärgas med järnvitriol. Putsarbetet utfördes av Tremans Fasad AB från Hedemora.
GÅRDEN OCH DEN NYA TVÄTTSTUGAN. Före renoveringen var gården en stor och sluttande asfaltsyta. I kanterna mot den stora stödmuren i norr fanns eftersatta planteringar och ett par träd. Mitt på gården var en träterrass byggd för att få en plan yta att sitta på. Den nu genomförda gårdsgestaltningen är helt modern men kommer ur en rad tekniska förutsättningar. Ytan närmast husen är underbyggd av en källare. Gårdsbjälklaget över denna är så tunt att ingen ytterligare last bör påföras. För att bromsa upp regnvattnet har gården terrasserats i olika nivåer. På så sätt skapas jordmagasin som kan bromsa regnvattnet. Marken närmast husen har fått en yta av kvastad betong medan resten av gården har kalksten, gräs och buskar. I gårdens sydvästra hörn har en ny tvättstuga och förrådsbyggnad uppförts. Tidigare fanns tvättstuga i källaren men efter förstärkningen av gårdsbjälklaget var det inte längre en lämplig placering. Den nya tvättstugan är uppförd på den del av gården som var bebyggd med bostadshus fram till 1940-talet. Detta hörn av gården är svåranvänt för andra ändamål då det alltid ligger i skugga. Tvättstugan är murad och putsad med kalkputs. Avfärgningen är densamma som för fasaderna, det vill säga med järnvitriol. En tanke med tvättstugan är att den, förutom att vara funktionell, ska smälta och bli ett tillskott till gårdsmiljön. Den har lånat sin form med det brutna taket från den typ av komplementbebyggelse som finns på södergårdar. Fönstren har gjorts större än vanligt för att släppa in rikligt med ljus men även tydliggöra att det här är ett hus från vår tid, en ny årsring till kvarteret.
INVÄNDIGA ARBETEN Under renoveringen har samtliga ytskikt renoverats. Metoder och material har varit traditionella så långt det har varit möjligt. Snickerier är målade med linoljefärg och tak med limfärg. Väggarna har tapet eller målade efter hyresgästens val. I köken har så mycket som möjligt av inredningen från 1940-talet sparats. Badrummen har gjorts om i sin helhet med nya tätskikt och ytskikt. I huskroppen mot Katarina Kyrkobacke fanns endast dusch i trapphuset innan renoveringen. Nu har varje lägenhet fått en egen dusch. Här har det varit en utmaning att göra badrummen så små det bara går, men välfungerande.











