Skip to main content

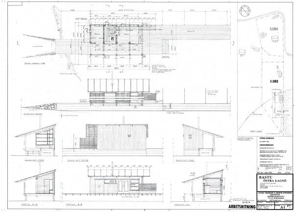
Bastu Östra Langö

Nybyggnation

  • År
    1996
  • Plats
    Österåker
  • Beställare
    Privat
  • Ansvarig arkitekt
    Jacob Hidemark och Martin Stintzing